Chartreuse de Fareyroux
Home
Overview
Gallery
Floorplan
Rates
Availability
Reviews
Map
Contact
EN
Book Now
Floorplan
Ground Floor: 191,10 sqm
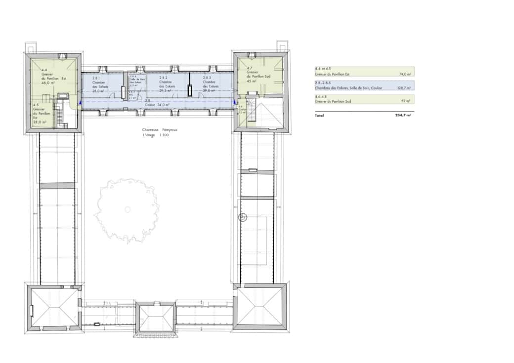
First Floor: 254,7 sqm
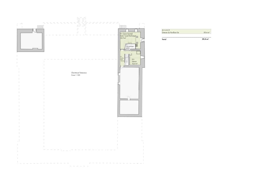
Basement: 59,4 sqm
Ground Floor
First Floor
Basement